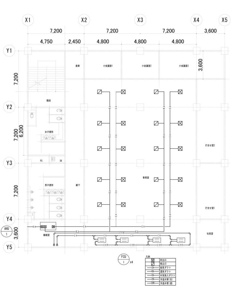
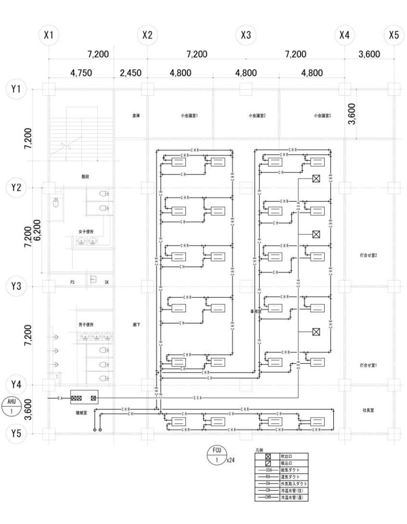
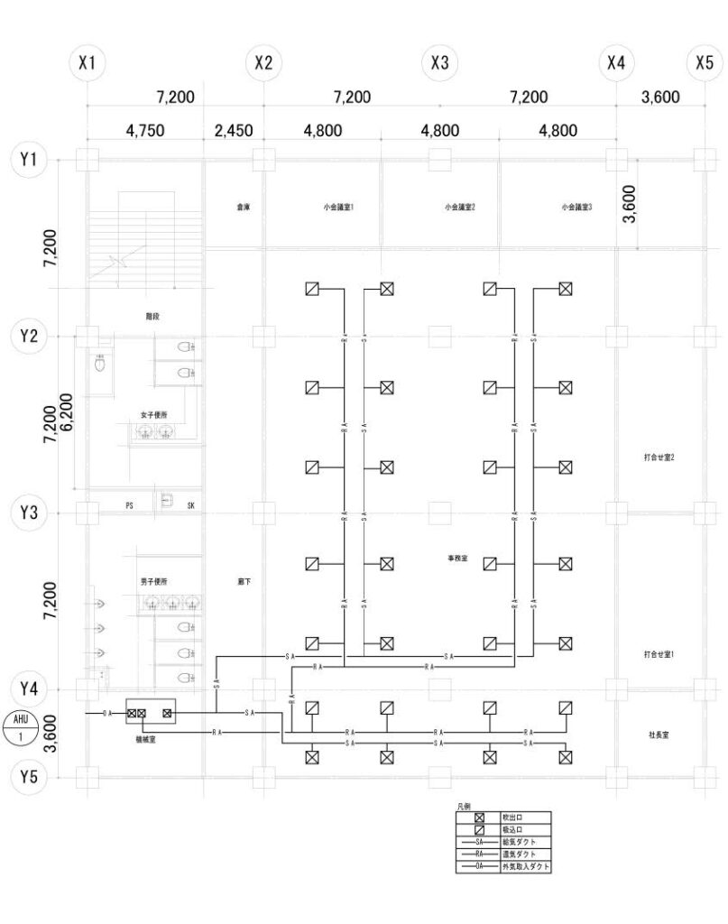
建築設備 -空調設備について紹介 2026.04.04 【↓機械設備入門一覧↓】(プルダウン) 機械設備入門 (10)【機械設備】 ・機械設備概要【空調換気設備】 ・換気設備概要 ・ダクト図 ・静圧計算 ・全熱交換器 ・スリーブ ・熱負荷計算 ・空気線図 ・熱源設備 ・空調設備 こんにちは。空調設備の設計をしていると、「空調方式が多すぎて、結局どれを選べばいいのか分からない」と感じることはないだろうか。実際、空調方式は非常に多様で、それぞれに特徴やメリット・デメリットがある。建物の用途や条件によって適正な空調方式が変わるため、検討すればするほど奥が深い分野である。しかし、それらの空調方式を検討するためには、空調設備の基本を熟知しておく必要がある。今回は、そんな空調設備の基本について紹介する。 コンテンツ 空調設備の概要熱源設備と空調設備の違い中央熱源方式における空調設備の範囲個別熱源方式(個別空調方式)における空調設備の範囲空調設備の分類空調設備の細分化各空調方式の特徴単一ダクト方式による空調計画例空調機+FCU方式による空調空調機単一ダクト方式と空調機+FCU方式の違い計画例外調機+FCU方式による空調計画例個別空調各空調方式の総括各空調方式と空気線図空調機による空調(夏期)空調機による空調(冬期)外調機による空調(夏期)外調機による空調(冬期)外調機による空調(冬期)個別空調(夏期)個別空調(冬期)まとめ 空調設備の概要 空調設備とは、部屋を冷やしたり暖めたりする設備を示す。例えば、冷房のときには冷風を、暖房のときには温風を供給する。空調設備の役割としては、人が快適に過ごせるように室内の温度や湿度をちょうどよく保つことである。例えば、夏に暑くなった部屋を冷やしたり、冬に寒い部屋を暖めたりするために、空調設備は欠かせない存在である。 空調設備の概要定義部屋を冷やしたり暖めたりする設備のこと。役割空調設備の役割としては、人が快適に過ごせるように室内の温度や湿度をちょうどよく保つこと。例えば、夏に暑くなった部屋を冷やしたり、冬に寒い部屋を暖めたりするために、空調設備は欠かせない存在である。 熱源設備と空調設備の違い 建物の設備は、大きく「熱源設備」と「空調設備」に分けられる。熱源方式は、ボイラーやチラーなどを使って冷水や温水といった「熱を運ぶための水(熱媒)」をつくる役割をもつ。これはいわば材料づくりの段階である。一方、空調設備は、その熱媒を受け取り、室内の空気を冷やしたり温めたりして、人が快適に過ごせる空気をつくる役割を担う。つまり、熱源が「熱を運ぶものをつくる装置」であるのに対し、空調設備は「その熱を利用して空気環境を整える装置」である。 熱源設備と空調設備の違い 熱源設備 ボイラーやチラーなどを使って冷水や温水といった「熱を運ぶための水(熱媒)」をつくる。 空調設備 空調設備は、その熱媒を受け取り、室内の空気を冷やしたり温めたりして、人が快適に過ごせる空気をつくる。 中央熱源方式における空調設備の範囲 熱源設備の範囲としては主に、熱源機器やポンプ類、それらをつなぐ配管類が該当する。一方で、空調設備の範囲としては主に空調機やファンコイルユニットといった室内の空調を直接的に担うものが該当する。熱源設備と空調設備は配管で接続されているが、熱源設備と空調設備の境界線についてはあいまいである。なお、中央熱源方式の場合は空調設備に換気設備が内包されている点も大きな特徴である。 個別熱源方式(個別空調方式)における空調設備の範囲 中央熱源の熱源機と同様に室外機も同じ役割を担っている。しかし、個別熱源方式の場合は室外機と室内機がセットで販売・設置される理由等から通例として室外機も含めて空調設備とされることが多い。そのため、個別熱源方式は個別空調方式と呼ばれることが多い。なお、個別熱源方式の場合は、別途換気設備を設置する必要がある。 空調設備の分類 空調設備は、求められる空気環境や温熱環境に応じて適切な方式を選択する必要がある。個別熱源方式(個別空調方式)は、一般的なオフィスビルで多く採用されているが、冷媒により空気を冷却・加熱する仕組みであるため、温度変化への追従性は必ずしも高くなく、さらに湿度制御も行えない。一方、中央熱源方式は水を用いて空気を冷却・加熱するため、温度環境への追従性は比較的高い。加えて、空調機や外気処理機により過冷却(除湿)、再熱、加湿などの処理を行うことも可能である。さらに、比較的大きな風量を一台の空調機で処理することができ、建物全体の空調に適している。 空調設備の分類 個別熱源方式(個別空調方式) 一般的なオフィスビルで多く採用される。 温度変化への追従性は高くなく、湿度制御を行うことができない。 中央熱源方式 温度環境への追従性が比較的高く、過冷却(除湿)、再熱、加湿などを行うことが可能。 また、大きな風量を一台の空調機で処理可能。 空調設備の細分化 中央熱源方式は空調機による空調と外調機による空調に大別される。空調機による空調としては単一ダクト方式による空調と空調機+FCU方式による空調に細分化される。外調機による空調は一般的に外調機+FCU方式による空調が一般的である。(図中のFCUはファンコイルユニットを示す。) 各空調方式の特徴 単一ダクト方式 大空間を均一に空調することが可能。 空調機+FCU方式 負荷が異なる室をまとめて空調することが可能。 外調機+FCU方式 小部屋が多い場合に効率よく空調・換気を行うことが可能。 各空調方式の特徴 単一ダクト方式による空調 1台の空調機から供給される空気をダクトで各室へ分配するため、広い空間や複数の部屋をまとめて効率的に空調できる点が大きな特徴である。しかし、異なる用途や熱負荷をもつ空間を同時に空調する場合には、各室の条件に合わせたきめ細かい調整が難しく、温度ムラが発生しやすいという課題もある。 単一ダクト方式の特徴 メリット 広い空間をまとめて空調することが可能。 デメリット 異なる用途や熱負荷を持つ空間を空調する際には温度ムラが発生しやすい。 単一ダクト方式で複数の室に空調空気を供給する場合、室ごとに供給する空気の温度を変えることはできない。そのため、温度ムラが発生しやすい。 計画例 空調機+FCU方式による空調 空調機で定常的な負荷を処理し、FCUで場所により傾向が異なる負荷を処理することで適切な空調を実現することが可能である。例えば、外皮負荷(窓面等の負荷)により部屋の中でも熱負荷の傾向が大きく変動する部分にFCUを用いることで、温度ムラを抑えることが可能となる。 空調機+ダクト方式の特徴 メリット 熱負荷への追従性が高い。 デメリット 室内に水配管が必要となることや、機器台数が増加する。 空調機単一ダクト方式と空調機+FCU方式の違い 下図のように、複数室に対して空調空気を供給する場合、FCUがないと室内温度にムラが生じやすく、FCUを設置することで、室内熱負荷のアンバランスに対応することが可能である。ただし、室内に水配管が計画されることが大きなデメリットとなる。 計画例 外調機+FCU方式による空調 外調機で外気処理を行い、各室にダクトを通じて新鮮な外気を一括供給することが可能である。一方で、各室の温度調整はFCUが行う。特に小部屋が多数計画される場合に有効であるが、FCUが処理する負荷が多くなり、多くの数量のFCUが必要となる。 外調機+ダクト方式の特徴 メリット 外調機=外気負荷、FCU室内負荷と分けることができ、特に小部屋に対して有効。 デメリット 水配管が必要。FCUを多く設置する必要がある。 計画例 個別空調 個別空調方式は建物規模を問わず一般的に普及している方式である。中央熱源方式に比べて比較的安価に空調設備を導入することが可能である。一方で、機器の台数が多くなることや、室内機と室外機の設置離隔に関する規制がデメリットとなる。また、中央熱源方式に比べると温度変化に対する追従性や、湿度制御ができないことが挙げられる。 個別空調の特徴 メリット 安価 デメリット 室内機室外機間の設置離隔の制約。温度変化に対する追従性や湿度制御が困難。 各空調方式の総括 各空調方式と空気線図 空調機による空調(夏期) 夏期においては、空調機によって湿度を十分に下げてから室内へ供給することが可能である。除湿する仕組みとしては、外気や室内から戻ってきた空気を空調機のコイルで冷却する過程で水分が凝縮され、余分な湿気が取り除かれることによる。湿度が適切に下がることで、同じ温度条件でも体感的に涼しさを感じやすくなり、快適性が向上する。また、湿度の低下はカビやダニの発生を抑制し、建築物の衛生環境を良好に保つ効果もある。さらに、湿度制御は精密機器や美術品の保存といった特殊用途の空間においても重要な役割を果たす。 空調機による空調(冬期) 冬期においては、外気や室内の戻り空気を空調機で十分に加温したうえで加湿を行うことで、室内に暖房された空気と適切な湿度を同時に供給することができる。乾燥しがちな冬期の環境において、暖房だけでなく加湿を組み合わせることは、快適性の確保や健康維持に重要な役割を果たす。 外調機による空調(夏期) 外調機では、外気を室内と同じエンタルピーまで冷却してから供給することが一般的である。一方で、外調機によって空気を過冷却すると、室内が過度に冷えすぎるなどの問題が生じる。 外調機による空調(冬期) 外調機によって空気を過冷却する場合は、再熱コイルなどにより空気を加熱することも考えられる。具体的には下表に示す通り、湿度を十分に低下させるために、空気を室内と同じ絶対湿度程度まで冷却を行う。次に冷却後の空気を加熱することで室内温度に近づける。 外調機による空調(冬期) 外調機では、外気を室内と同じエンタルピーまで加熱・加湿してから供給することが一般的である。加湿方式によって空気線図上の空気の変化経路は多少異なるものの、最終的に室内と同じエンタルピーを持つ空気を生成する点は共通している。 個別空調(夏期) 中央熱源と個別空調の最も大きな違いは、外気を一括処理できるかどうかである。個別空調の場合、室内機が室内の空気のみを冷却する。そのため、外気の処理を行っていない場合は、外気が室内に介在することとなり、中央熱源に比べて空気の質が低下する。 個別空調(冬期) 冷房時と同じく個別空調の場合は一般的に外気を一括処理することができない。個別空調の場合、室内機が室内の空気のみを加熱する。そのため、外気の処理を行っていない場合は、外気が室内に介在することとなり、中央熱源に比べて空気の質が低下する。 まとめ 今回は空調設備の基本について紹介した。基本をマスターしておくことで、様々なケースに対して臨機応変に空調方式を選定できるようになるだろう。
コメント